Zum Hauptinhalt springen
Kontrast
Kontrast
Schriftgröße
de
Deutsch
suchen
Menü
schließen
Im Fokus
Virtueller Rundgang
Investieren / Pachten
News
Zeitschiene
Galerie
Ausschreibungen
FAQs
Modellvorhaben
Modellkommune
Daten & Fakten
Modellziele
Städtische Vorhaben
Nachhaltigkeit
Planen & Bauen
Quartiersplanung
Erschließungsplanung
Städtische Vorhaben
Konzeptausschreibung
Auf der Baustelle
Mitmachen
Partizipation für alle
Aktivitäten
Mach mit!
Sie sind hier:
WarnowQuartier
Im Fokus
Publikationen
Planen & Bau
Planen und Bauen
Rahmenplan zum Warnowquartier
vom 26.08.2022
Bebauungsplan im Entwurf
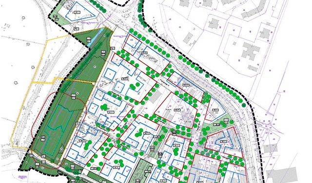
Grünordnungsplan
Übersicht Nutzungen im WarnowQuartier
Energiekonzept zum Bebauungsplan des WarnowQuartiers
vom 21.11.2021
Fachbeitrag zum Wasserhaushalt, Hochwasserschutz und nachhaltigem Umgang mit Niederschlagswasser
vom 05.10.2021
Artenschutzrechtlicher Fachbeitrag
aus dem Jahr 2022
Schalltechnische Stellungnahme
vom 28.04.2022